60代の3割、住まいの見直し「良かった」
旭化成ホームズが行った「50代のくらしに関する調査」*で、50代の約3人に2人が「住まいを見直したい」と回答するなど、住まいのアップデートはOurAge世代の関心事。

旭化成ホームズ「50代のくらしに関する調査」*より
また、60代の方々にとって、40代以降で見直してよかったこととして、「お金」「趣味」に次いで「住まい」が約3割を占めるという結果も。

旭化成ホームズ「50代のくらしに関する調査」*より
このような調査結果からも、住まいを、次なるライフステージにふさわしいコンディションに整えておくことの大切さがわかります。
しかし、住まいの見直しには,お金も、手間も、時間もかかります。しかも、見直すといっても、何をどうするかも悩ましいところです。
そこで、実際に住まいの見直しを行った先輩たちの事例をチェック。その“勘所”を探ってみましょう。
*https://www.asahi-kasei.co.jp/j-koho/press/20240528-01/index/?utm_source=chatgpt.com
住まいの「不満」を、リノベーションで解消!

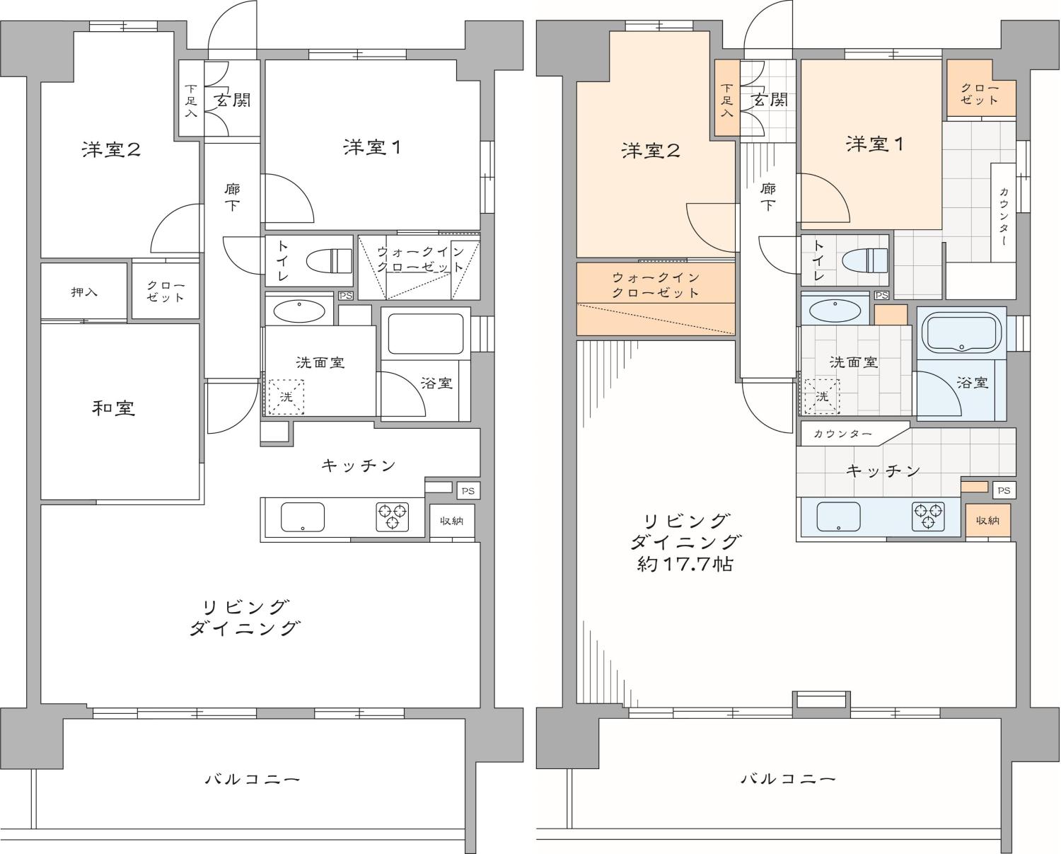
約28年前に新築で購入した自宅マンションを、工事費1,400万円でリノベーションした夫妻。
5LDKから3LDK+WIC(ウォーク・イン・クローゼット)にリノベーションし、「内装の老朽化」「玄関の暗さ」そして「夫婦の寝室」という課題を解決しました。

間取り図 Before(左)、After(右)
構造躯体を残して、内装は刷新するというスケルトン工事によって、内装は完全リニューアル。
窓がなく、暗くて狭かった玄関は、玄関横の洋室とバルコニーを一体的にリノベしました。土間を広くとり、玄関収納も大きくなって、バルコニーへのアクセスも一挙に改善!

記事が続きます
夫婦の寝室は、リノベ前はリビングに隣接する和室を利用していたため、どちらかが就寝中は、リビングでの生活音やキッチンでの作業に気を使う暮らしだったそう。
リノベ後は、夫婦の寝室として使っていた和室を、大空間リビングダイニングの一部として間取り変更。夫婦の寝室には、それぞれ専用の部屋を設けたことで、生活動線もすっきりしました。風邪を引いたときの衛生面も安心です。
このほか、L字型だったキッチンをI型に変更し、気になっていたL字型のコーナーのデッドスペース問題を解消するなど、それまでの暮らしで不満に感じていた箇所を、リノベーションによって解決しました。
業者への依頼は、希望の間取りを伝えるというよりも、不満点を伝えて、それに対するソリューションを提案してもらうという方法でお願いしたとか。結果、大正解で大満足の住まいの見直しとなりました。
出典:https://www.globalbase.jp/case/detail.php?jid=218
「住み替え」+「リノベ」で、これからの生活を楽しめる趣味中心空間へ

ふたりには広すぎて、今後の維持管理も大変になる約200㎡の戸建住宅から、マンションへ住み替え。
リノベーションして、それぞれが思いっきり趣味を楽しめる住まいを叶えた夫妻。
マンション暮らしは初めて。住み替えにあたっては、周辺の環境を慎重に見極めて、自分たちの希望の暮らしに合った物件を探しました。

間取り図 Before(左)、After(右)
妻は人形作り、夫は写真や音楽と、夫妻ともに熱心に取り組む趣味があるふたり。それぞれが気兼ねなく趣味を楽しめる専用の部屋を持つことが希望でした。
また、前の住まいでともに暮らしてきた大切な家具にあわせて、内装をリノベーション。夫の趣味である音楽を楽しむためのステレオ置き場も、コンセントの位置も含めて最適な場所を用意しました。
記事が続きます

この夫妻は、年を重ねてライフステージが変わっていくなかで、「20年後に自分たちがどういう生活をしているか」を考え、物件探しとリノベーションに臨んだそう。母親の介護経験も、物件探しに生かされました。
自分たちが「何をしたいのか」「何がほしいのか」が明確だからこそ、希望どおりの住まいの見直しが実現しました。
出典:https://www.globalbase.jp/case/detail.php?jid=192
OurAge世代だから導き出せるハズ! 住まいの見直しベストアンサー
今回の事例からは、住まいの見直しを成功させるために大切なことは、「不満点」や、暮らしを「こうしたい」が、住まう人のなかに明確にあることのようです。
「不満点」や「こうしたい」は、暮らしを積み上げてきたOurAge世代だからこそわかる、住まいの見直しの“勘所”。住まいの見直しに伴う引っ越しだって、まだまだ体力がある今のうちに済ませるのが吉。
心身の健康のために生活習慣を見直すように、生活の土台となる住まいのありかたも見直してみませんか。
取材・原文/米田ねこ 取材協力・写真提供/グローバルベイス株式会社


